Pod 12

1 Bed

Intimate. Open. Purposefully indulgent.

GET A QUOTE

The Pod

From just:

$59,500 + delivery

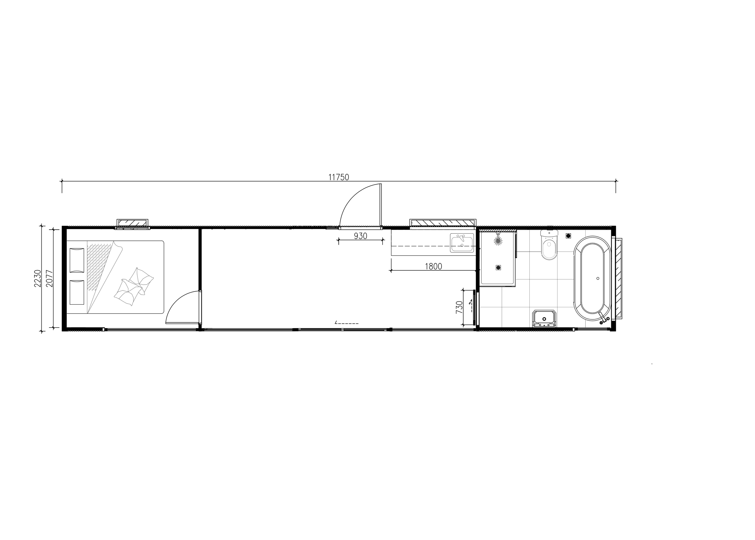
Size: 11.2m x 2.2m

Footprint: 27 m2

Ceiling Height: 2.3m

Exterior Wall Thickness: 85mm


Stats

1 Bed

1 Premium Bath with bathtub

1 Kitchen

1 Living



Pod style outdoor living; whether its luxury eco-tourism accommodation, or a stylish and customisable home studio or office.

  • Insulation Performance

  • Plug & Play

  • Delivered pre-assembled

  • Contemporary Design

  • AC & Hot Water Upgrades

  • Cost Effective

Floor Plans

Designed as a premium short-stay experience.


The LogicPod 12 one-bedroom model is designed as a premium short-stay experience.

The bedroom opens into a large, open bathroom with a freestanding bath positioned beside a full-height awning window.

The result is a strong connection to the surrounding landscape, even during moments of rest and privacy.

This model is well suited to honeymoon stays, anniversary trips, and high-end eco-retreats.

Sleeps 2

Best for couples

Download Plan
Download Brochure

Skip Planning.
Skip Building Permits.

Mounting a pod on a trailer can remove the need for planning and building approval in many locations. That means less paperwork, fewer delays, and lower upfront risk.

Trailer-mounted pods suit backyard studios, guest stays, and short-stay rentals. They arrive ready to place and can be moved later if the site or use changes. You get speed and flexibility without locking yourself into permanent works.

Learn our process

Our Process







Step 1
Step 2

Select Your Pod and Add-Ons

Choose the LogicPod model and the add-ons that suit your site and guests.
Decks, awnings, baths, hot water, air-conditioning, solar, and furniture are locked in early so the pod arrives configured for your project.

Footings or Trailer

We confirm whether the pod will sit on footings or a trailer.
This decision sets the approval pathway, timeframes, and upfront costs.

Approvals

If approvals are required, we can coordinate or support the process with the right consultants.
If the pod is on a trailer, this step may be reduced or skipped depending on council.

Step 3

Contract

Once scope and pathway are clear, we lock in pricing and programme.
The contract reflects exactly what is being supplied and how it will be delivered.

Step 4

Delivery & Handover

The completed pod is transported to site and craned or positioned into place.
Connections are made to suit the agreed setup.

From here, it’s ready to host guests or start operating.

Step 5

Off-site Construction

Your LogicPod is constructed at our facility using robotic precision and expert craftsmanship. This process minimises waste, ensures quality, and minimises construction time.

Step 6
A modern living space with a bed, a round coffee table, a floor lamp, chairs, and a countertop, featuring large windows overlooking a wooded outdoor area.
Sunlit modern bedroom with a large bed, wooden accents, a beige chair, a small table with a book, and large windows with sheer white curtains overlooking a hillside.
Modern kitchen with wood cabinets, white countertop, and large window showing trees outside; small laundry area with sink and towel to the left.

Premium finishes come standard

A considered architectural fixtures and finishes package is standard for those seeking a more refined, guest-facing finish.

  • Electrical fittings are elevated to include:

    • Black electrical outlets

    • USB-A and USB-C charging outlets

    • Premium brass switch plates

    • Dimmable lighting controls

  • Tapware is brushed gunmetal, adding contrast and a more considered bathroom and kitchenette aesthetic.

  • Interior wall finishes are a durable bamboo charcoal panel with timber veneer, ensuring warmth without introducing high-maintenance materials.

Stainless steel modern kitchen faucet with a pull-down spray head, mounted on a marble countertop near a window.
Close-up of two black knob switches on a black rectangular plate mounted on wooden wall.
Close-up of a wooden outdoor wall with a rectangular light fixture, with a blurred landscape and trees in the background during sunset.

Extras That Complete the Stay.

Everything works together.


Deck & Awning,
Ready to Assemble.

We offer a complete composite deck and awning package designed to travel inside the pod. It arrives with the building and assembles on site without redesign or custom fabrication. The deck adds space to sit, eat, and slow down. The awning gives shade and shelter where guests actually use it.


Services,
Sorted.

We offer solar, battery, air-conditioning, and hot water packages through our commercial partnership with Rinnai.

Systems are selected to suit small, all-electric buildings and short-stay use. Everything is sized to the pod, coordinated with the build, and ready to connect on site. Fewer trades. Cleaner installs.

A setup that works from day one.


An Outdoor Moment,
That Guests Remember.

For projects chasing a stronger stay experience, we also supply composite stone-look bathtubs made for outdoor use. Set on the deck and placed to the view, the bath becomes part of the stay, not an add-on.


Ready to Host,
Day One.

We offer complete furniture packages through our partnership with King Living.

The furniture is selected to suit compact spaces and short-stay use. Pieces arrive matched, scaled, and ready to live with. No guesswork. No last-minute shopping runs. Your pod arrives set up to host from day one.

Placed under open sky and turned toward the view, the bath becomes part of the stay. A moment guests remember.

We can supply solid surface, concrete-look tubs designed for external decks. They handle weather. They suit bush, coastal, and retreat settings.

GET A QUOTE

Take the Next Step


Download our Design Price Guide for more information on our designs, inclusions, personalisation options and pricing. 

Or contact us – we’re here to help answer any questions. 

Enquire Now
Download the Brochure
A model of a modern tiny house with large glass windows, wooden exterior, and outdoor deck, displayed on a table in a well-lit room with large windows showing a grassy landscape outside.
Large piece of industrial equipment wrapped in plastic being lifted by overhead crane in warehouse.
A semi-truck inside a warehouse, with a large package wrapped in plastic being loaded or unloaded by a worker using a forklift and another worker nearby.
Sunlit bedroom with a white bed, beige headboard, wooden side table, and large glass sliding doors with sheer curtains, overlooking an outdoor landscape.
Workers guide a prefabricated house into place with a crane in a rural area with trees and hills in the background.
Construction workers guiding a modern tiny house with wooden exterior panels being lifted by a crane on a grassy field with trees and a blue sky in the background.